Euroship Luxe Motor 1500

Euroship Luxe Motor 1500

Een schip op maat, een bouwpakket, een casco, een technisch vaarklaar schip of een compleet sleutelklaar schip, afhankelijk van Uw wensen en Uw eigen mogelijkheden kan Euroship Services elke leveringsomvang aanbieden om samen met U het schip van Uw dromen te realiseren.

Heeft U speciale wensen dan nodigen wij U uit om de tekeningen van de website te printen en Uw eigen indeling en details in te schetsen. Denk na over de technische uitvoering en uw wensen hieromtrent en zet deze op papier. Na een persoonlijk gesprek kunnen wij aan de hand van Uw informatie een juiste offerte maken voor een snijpakket, een casco, een technisch vaarklaar schip of een compleet afgebouwd schip.

Een omgebouwde Luxe Motor, het ideale schip voor een langdurig verblijf aan boord en om lange reizen mee te maken op de Europese binnenwateren, overwinteren in Zuid Frankrijk, wie droomt er niet van.

De oude schepen zijn bijna “op” en nieuwbouw wordt weer interessant, gebruikmakend van een origineel lijnenplan en moderne computertechnieken hebben wij deze serie schepen opnieuw ontworpen, schepen met een aangepaste holte en zeeg om het varen en wonen aan boord tot een waar genoegen te maken.

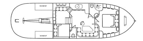
Het ontwerp hieronder is 15 meter lang en heeft een stalen stuurhuis, open kuip met banken achterop, kuip en stuurhuis bevinden zich op een niveau, gangboord ter plaatse van de schuifdeur in het stuurhuis is dezelfde hoogte als de vloer binnen. De motor bevindt zich onder het achterste deel van het stuurhuis.

Het laadruim, het achterste deel, is voorzien van hoge roef met daaronder een dubbele bodem, hier kan nog goed naar buiten gekeken worden, in deze ruimte bevinden zich de keuken en een dinette. Het voorste deel heeft een lage roef, hier ligt de vloer direct op de spanten van het vlak, in deze ruimte bevindt zich een separate douche en toilet en een ruime tweepersoons hut. Onder het voorste deel van het stuurhuis kunnen naar wens nog een gastenhut, een kantoor of hobbyruimte ingericht worden.

Ontdek verder
Afdrukken

Neem contact op voor de

Ik ontvang graag een kopie
Doorsturen Delen Contact

Afmetingen

Lengte o.a.: 15.00 m meter

Breedte o.a.: 4.40 m meter

Diepgang: 0.90 m meter

Doorvaarhoogte: 3,2 m meter

Waterverplaatsing: Onbekend

Casco

Vlak -huid, -boei: 6 mm

Schotten, -tanktop, -dek, -opbouw: 6 mm

Dekken, opbouw: 6 mm

Berghouten: massief plat 200*15 met halfrond 60*20

Technische uitvoering

Voortstuwing: naar keuze, een of twee motoren, 90 Hp vermogen, nodig voor de rompsnelheid van ong. 16 à 17 km/h

Koeling: Kielkoeling, geen buitenboordwater naar binnen, droge uitlaat

Schroefas: Watergesmeerd met binnenlager 30" vierbladsschroef

Druklager: Aquadrive druklager / koppeling

Roeren: Vrijdragende spade-roer, of afgesteund op de hak

Stuurmachine: Hydraulisch werk

Brandstoftank: 3000 ltr

Watertank: 2000 ltr

Vuilwatertank: 2000 ltr

Prijs

In verband met fluctuerende staalprijzen, stuur een E mail voor de actuele prijzen.

Platenpakket, alle plaatonderdelen op maat uitgesneden: euro 42.500,=

Profielen pakket, alle benodigde profielen, plat, T, hoek-ijzer: euro 4.250,=

Alle platen waar nodig, zetten, buigen en vormen: euro 3.500,=

Casco compleet, het complete casco afgelast en wel: euro 145.500,=

Prijzen excl. btw en af fabriek.

Prijs voor een technisch vaarklaar schip of een compleet schip op aanvraag.

Specificaties van de Euroship Luxe Motor 1500

Algemeen

Doorvaarthoogte normaal
3.2 m
Diepgang
90 cm
Afdrukken