Euroship Luxe Motor 2300

Euroship Luxe Motor 2300

Een schip op maat, een bouwpakket, een casco, een technisch vaarklaar schip of een compleet sleutelklaar schip, afhankelijk van Uw wensen en Uw eigen mogelijkheden kan Euroship Services elke leveringsomvang aanbieden om samen met U het schip van Uw dromen te realiseren.

Heeft U speciale wensen dan nodigen wij U uit om de tekeningen van de website te printen en Uw eigen indeling en details in te schetsen. Denk na over de technische uitvoering en uw wensen hieromtrent en zet deze op papier. Na een perooonlijk gesprek kunnen wij aan de hand van Uw informatie een juiste offerte maken voor een snijpakket, een casco, een technisch vaarklaar schip of een compleet afgebouwd schip.

Geheel nieuw opgezet ontwerp van een luxe motor, gebruikmakend van een orgineel lijnenplan met aangepaste holte en zeeg om het varen en wonen aan boord optimaal te kunnen benutten.

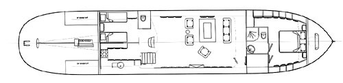
Vast stalen stuurhuis, open kuip met banken achterop, kuip en stuurhuis bevinden zich op een niveau, het dek in het achterschip is recht tot ongeveer midscheeps en loopt dan met de zeeg mee omhoog naar het voordek.

Hier is de kuip op het achterdek voorzien van een dubbele boei.

Gangboord ter plaatse van de schuifdeur in het stuurhuis is dezelfde hoogte als de vloer binnen. De motor bevind zich onder het achterste deel van het stuurhuis.

Het laadruim, achterste deel, is voorzien van hoge roef met daaronder een dubbele bodem, hier kan nog zeer goed naar buiten gekeken worden, in deze ruimte bevinden zich de keuken en een ruime dinette.

Bij dit onwerp wordt de middenroef rondom betimmerd en wordt verder gebruik gemaakt van losse meubels. Het wordt dus een knusse huiskamer.

Het voorste deel heeft een lage roef, hier ligt de vloer direct op de spanten van het vlak, in deze ruimte bevind zich naar keuze een separate douche en toilet en een ruime twee persoons hut.

Onder het voorste deel van het stuurhuis kunnen naar wens nog twee hutten, een kantoor of hobbyruimte ingericht worden.

Het ontwerp kan naar persoonlijke wensen aangepast worden. De lengte is naar keuze, het 22 mtr. ontwerp heeft een breedte van 4.85 mtr.

De diepgang is zonder ballast 1.00 mtr. een grotere diepang met vaste ballast, en een hoger vrijboord is mogelijk. Grote brandstoftanks, watertanks en vuilwater zijn mogelijk, er is ruimte voor totaal ong. 9000 liter.

De hier getoonde indeling is een voorzet en kan aangepast worden, maak Uw eigen indeling en schrijf Uw eigen technische uitvoering en Uw schip wordt op maat uitgevoerd, wij kunnen dit dan als platenpakket of als casco leveren.

Ontdek verder
Afdrukken

Neem contact op voor de

Ik ontvang graag een kopie
Doorsturen Delen Contact

Afmetingen

Lengte o.a.: 23.00 m meter

Breedte o.a.: 4.85 m meter

Diepgang: 1.00 m meter

Doorvaarhoogte: 3,2 m meter

Waterverplaatsing: Onbekend

Casco

Gehele romp en roefbeplating: 6mm

schotten, kuip, banken: 5mm

gesneden spanten: 6mm

motor fundatie: 8mm

berghout: gesneden plaat 150 * 15 mm

dek en vloerprofiel: T 50 * 50 * 5

Technische uitvoering

Voortstuwing: Naar keuze, een of twee motoren, ongeveer145 Hp vermogen nodig voor de rompsnelhied van ong. 17 à 18 km/h

Koeling: Kielkoeling, geen buitenboordwater naar binnen, droge uitlaat

Schroefas / schroef: Watergesmeerd met binnenlager 30" Vierblads schroef

Druklager: Aquadrive druklager / koppeling

Roeren: Geprofileerd roer afgesteund op de hak

Stuurmachine: Hydraulisch stuurwerk, tweemaal 90 graden slag

Brandstoftank: 3000 ltr.

Watertank: 2000 ltr.

Vuilwatertank: 2000 ltr.

Prijs

In verband met fluctuerende staalprijzen, stuur een E mail voor de actuele prijzen.

Platenpakket, alle op maat gesneden plaatonderdelen euro 92.500,=

Profielenpakket, alle benodigde profielen, op 6 mtr. lengte euro 6.400,=

Alle platen waar nodig, zetten, buigen en vormen: euro 5.750,=

Casco, platenpakket + profielenpakket gebouwd en afgelast euro 230.500,=

Prijzen excl. btw en af fabriek.

Prijs voor een technisch vaarklaar schip of een compleet schip op aanvraag

Specificaties van de Euroship Luxe Motor 2300

Algemeen

Doorvaarthoogte normaal
3.2 m
Diepgang
100 cm
Afdrukken