Euroship Tjalk 2000

Euroship Tjalk 2000

Een schip op maat, een bouwpakket, een casco, een technisch vaarklaar schip of een compleet sleutelklaar schip, afhankelijk van Uw wensen en Uw eigen mogelijkheden kan Euroship Services elke leveringsomvang aanbieden om samen met U het schip van Uw dromen te realiseren.

Heeft U speciale wensen dan nodigen wij U uit om de tekeningen van de website te printen en Uw eigen indeling en details in te schetsen. Denk na over de technische uitvoering en uw wensen hieromtrent en zet deze op papier. Na een persoonlijk gesprek kunnen wij aan de hand van Uw informatie een juiste offerte maken voor een snijpakket, een casco, een technisch vaarklaar schip of een compleet afgebouwd schip.

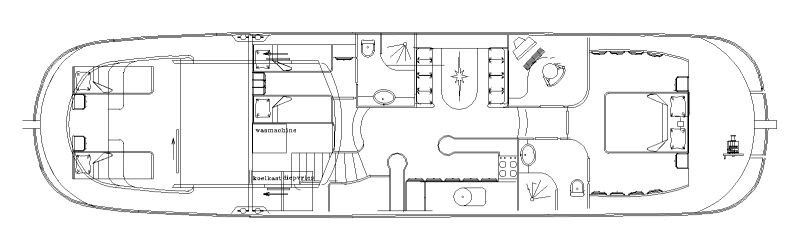
Een Tjalk, dit oer Hollandse schip leeft weer. Recent worden er weer nieuwe tjalken gebouwd. Ingegeven door de ideale woonruimte die aan boord van een tjalk gemaakt kan worden heeft Euroship Services nu een tjalk op stapel staan. Gebruikmakend van originele lijnenplannen, fraaie nooit stilstaande lijnen, ronde kimmen en een vol voor- en achterschip ontstaat een schip wat bij uitstek een “Frankrijk” schip is. Verkrijgbaar in lengtes van 15 tot 20 meter.

De tjalk kan in vele uitvoeringen gemaakt worden, de mogelijkheden zijn min of meer gelijk aan de mogelijkheden die de Euroship Luxe motor kan bieden. Kijk voor voorbeelden van verschillende indelingen ook bij de luxe motor’s we kunnen dergelijke indelingen ook uitvoeren met een tjalk als lijnenplan

Ontdek verder
Afdrukken

Neem contact op voor de

Ik ontvang graag een kopie
Doorsturen Delen Contact

Afmetingen

Lengte o.a.: 20.00 m meter

Breedte o.a.: 4.70 m meter

Diepgang: 1.00 m meter

Doorvaarhoogte: Onbekend

Waterverplaatsing: Onbekend

Casco

Technische uitvoering

Prijs

Door o.a. de prijsstijging van staal, zijn onderstaande prijzen met 30% verhoogd.

Platenpakket, alle plaatonderdelen op maat uitgesneden: euro 57.500,=

Profielen pakket, alle benodigde profielen, plat, T, hoek-ijzer: euro 4.650,=

Alle platen waar nodig, zetten, buigen en vormen: euro 3.750,=

Casco compleet, het complete casco afgelast en wel: euro 145.500,=

prijzen excl. btw en af fabriek

Bekijk de Euroship Tjalk 2000

Specificaties van de Euroship Tjalk 2000

Algemeen

Diepgang
100 cm
Afdrukken